2593 an 's-gravenhage

Theresiastraat 12

€ 470.000,- Kosten koper

Woning omschrijving

Licht, royaal hoekappartement met riant zonnig dakterras en mogelijkheid tot 2 slaapkamers In het hart van het geliefde Bezuidenhout, aan het leukste gedeelte van de levendige Theresiastraat, ligt dit bijzonder lichte en ruime 3-kamerappartement van 93 m² met een fantastisch dakterras op het zuiden. Door de hoekligging en de vele...

Lees meer

Kenmerken

  • Soort object Appartement
  • Woonoppervlakte 93m²
  • Aantal kamers 3
  • Aantal slaapkamers 1
Meer kenmerken

Woning omschrijving

Licht, royaal hoekappartement met riant zonnig dakterras en mogelijkheid tot 2 slaapkamers

In het hart van het geliefde Bezuidenhout, aan het leukste gedeelte van de levendige Theresiastraat, ligt dit bijzonder lichte en ruime 3-kamerappartement van 93 m² met een fantastisch dakterras op het zuiden.
Door de hoekligging en de vele ramen is het appartement heerlijk licht en biedt het een fraai uitzicht over de Theresiastraat. De woning is netjes onderhouden en dankzij de oorspronkelijke indeling is het bovendien eenvoudig om een tweede slaapkamer te realiseren.

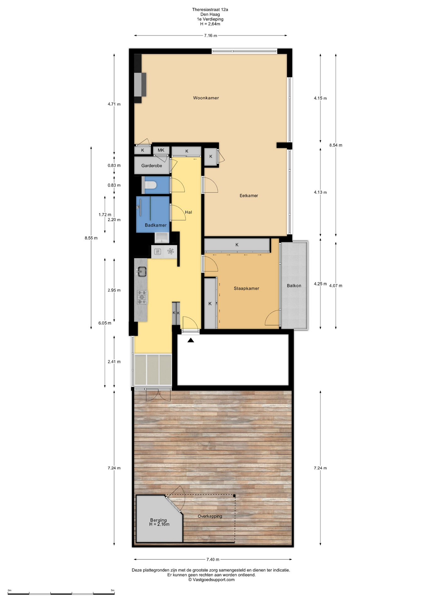
Indeling
Gesloten entree met brievenbussen en bellentableau. Trap naar de eerste verdieping.
Entree appartement, ruime hal met garderobemogelijkheid en toegang tot alle vertrekken.
De sfeervolle L-vormige woon-/eetkamer met open haard en vaste kasten bevindt zich op de hoek, met grote raampartijen aan twee zijden en vrij uitzicht. Deze ruimte was oorspronkelijk opgedeeld in een woon- en slaapkamer; indien gewenst kan de tweede slaapkamer eenvoudig worden teruggebracht.
De keuken is halfopen en voorzien van diverse inbouwapparatuur. Aangrenzend bevindt zich een lichte serre met openslaande deuren naar het royale dakterras, waar u de hele dag van de zon kunt genieten. Op het terras staat tevens een praktisch houten berging/schuurtje.
De slaapkamer aan de voorzijde heeft toegang tot een klein balkon met uitzicht op de Theresiastraat. De badkamer beschikt over een inloopdouche en wastafel. Separaat toilet met fontein.
In de onderbouw is een eigen (fietsen)berging aanwezig.

Voor afmetingen: zie de plattegrond.

Bijzonderheden:
-Woonoppervlakte 93m2
-Dakterras op het zuiden met houten schuurtje
-Eigen fietsenberging in de onderbouw
-Flexibele indeling: makkelijk terug te brengen naar 2 slaapkamers
-Gelegen op eigen grond
-3/14de deel in de actieve VvE
-Maandelijkse bijdrage € 128,-
-CV-combiketel, Remeha bouwjaar 2012
-Grotendeels voorzien van dubbel glas
-Bouwjaar 1967

De Theresiastraat is één van de meest geliefde en levendige straten van Den Haag, met een dorps karakter midden in de stad. Hier vindt u een breed aanbod aan winkels, speciaalzaken, gezellige cafés en restaurants, allemaal op loopafstand. Het Haagse Bos ligt om de hoek, ideaal voor een wandeling of hardlooprondje, en ook Park Clingendael, het centrum van Den Haag en het strand van Scheveningen zijn gemakkelijk per fiets bereikbaar. Station Den Haag Centraal ligt op slechts enkele minuten lopen, en via de Utrechtsebaan (A12) zijn de snelwegen richting Amsterdam, Rotterdam en Utrecht snel te bereiken. De wijk Bezuidenhout staat bekend als groen, veilig en sfeervol – een perfecte combinatie van rust, stadse gezelligheid en uitstekende bereikbaarheid.

Interesse in dit huis? Schakel direct uw eigen NVM-aankoopmakelaar in. Uw NVM-aankoopmakelaar komt op voor uw belang en bespaart u tijd, geld en zorgen. Adressen van collega NVM-aankoopmakelaars in Haaglanden vindt u op Funda.

Kenmerken

  • Status Beschikbaar
  • Vraagprijs € 470.000,- kosten koper
  • Aanvaarding In overleg

BOUWVORM

  • Soort object Appartement
  • Soort woning
  • Type woning Appartement
  • Subtype woning 1
  • Bouwjaar
  • Bouwvorm Bestaande bouw
  • Ligging In woonwijk

INDELING

  • Woonoppervlakte 93 m2
  • Perceeloppervlakte
  • Inhoud 305 m3
  • Aantal kamers 3
  • Aantal slaapkamers 1
  • Aantal woonlagen 1 woonlagen

ENERGIE

  • Isolatie
  • Warmwater
  • Verwarming

BUITENRUIMTE

  • Tuin
  • Hoofdtuin
  • Oppervlakte hoofdtuin m2 ( m bij m)
  • Ligging hoofdtuin
  • Achterom -
  • Kwaliteit tuin -

BERGRUIMTE

  • Schuur/berging 1

PARKEERGELEGENHEID

  • Garage Geen garage
  • Parkeerfaciliteiten -